






























Cauti un apartament modern, luminos si eficient, intr-un complex nou, bine pozitionat si construit la standarde actuale?
Acest apartament de 2 camere din ansamblul Iris Armoniei imbina confortul zilnic cu calitatea constructiei si costuri reduse de intretinere – ideal pentru locuire sau investitie.
Localizare excelenta – aproape de tot ce conteaza
- British International School, Scoala Babel, USAMVB
- Spitalul Regina Maria
- Centre comerciale: Kaufland, Mega Image, Auchan, Profi
- Restaurante, cafenele, farmacii, banci, statii RATT
- 8 minute pana la Iulius Mall
- Zone verzi si spatii pentru relaxare, la max. 10 minute de mers pe jos
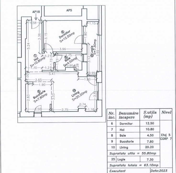
Un apartament modern, gandit pentru confort si functionalitate, orientat spre sud:
- Suprafata utila: 55,8 mp
- Logie generoasa: 7,3 mp
- Compartimentare decomandata
- Living luminos, cu acces pe logie
- Bucatarie usor de mobilat
- Dormitor spatios, cu acces pe logie
- Baie cu dus si finisaje moderne
- Etaj 5 din 11
Dotari si finisaje
- Incalzire in pardoseala
- Aer conditionat Fujitsu
- Tamplarie PVC Rehau tripan (alb interior / gri exterior)
- Usi Porta, videointerfon
- Termoizolatie 20 cm – sistem Baumit
- 2 lifturi Kone, rapide si silentioase
Parcare
- Loc de parcare exterior acoperit, situat intr-o zona securizata, cu acces controlat – se vinde impreuna cu apartamentul, la pretul de 5.000 euro
Despre complex
Ansamblu rezidential modern, certificat nZEB, construit cu beton verde ECOPact, cu sisteme eficiente energetic: panouri solare, pompa de caldura si centrala comuna pe gaz. Spatii verzi, locuri de joaca, alei pietonale si zone de relaxare completeaza un mediu sigur si bine organizat.
Pret apartament: 135.000 euro
Pret loc parcare: 5.000 euro
Comision 0% pentru cumparator
Contact: Teona Lupulescu – 0770 294 069