




































Apartament cu 2 camere, eficient compartimentat, potrivit atat pentru o familie tanara care isi doreste confort si acces rapid la centrul orasului, cat si pentru cei care cauta o investitie sigura, intr-o zona cu cerere constanta de inchiriere.
Situat central, langa Iulius Mall, in apropiere de Parcul Botanic si Piata Unirii, pe strada Ionel Perlea, apatamentul se afla intr-un imobil retras de la bulevard, cu zona verde in fata, oferind liniste, siguranta si un cadru placut pentru viata de zi cu zi.
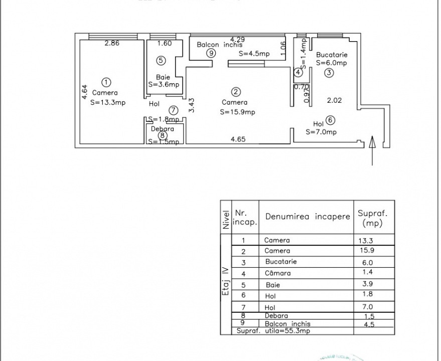
Detalii apartament:
- Suprafata utila: 55.3 mp
- Etaj: 4 din 4
Compartimentare practica:
- Living luminos cu balcon inchis
- Dormitor
- Bucatarie cu camara
- Hol cu debara
- Baie cu vana si geam
Dotari si beneficii:
- Renovat in 2025
- Centrala termica proprie noua
- Aer conditionat
- Mobilat si utilat
- Bucatarie mobilata si utilata, cu electrocasnice achizitionate in 2025
- Geamuri termopan
- Spatii de depozitare bine gandite
- Luminos, bine intretinut
De ce este o alegere inspirata:
- Zona ideala pentru familie tanara: parc, mall, scoli, centru la cateva minute
- Perfect pentru inchiriere pe termen lung, zona cu cerere constanta de inchiriere
- Apartament gata de mutare sau de inchiriat, fara investitii suplimentare
- Acces rapid catre zonele centrale si de business
Pret: 89.000 euro Comision 0% pentru cumparator
📞 Pentru informatii suplimentare si programarea unei vizionari: Teona Lupulescu 0770294069