














































Maximizeaza-ti spatiul si timpul!
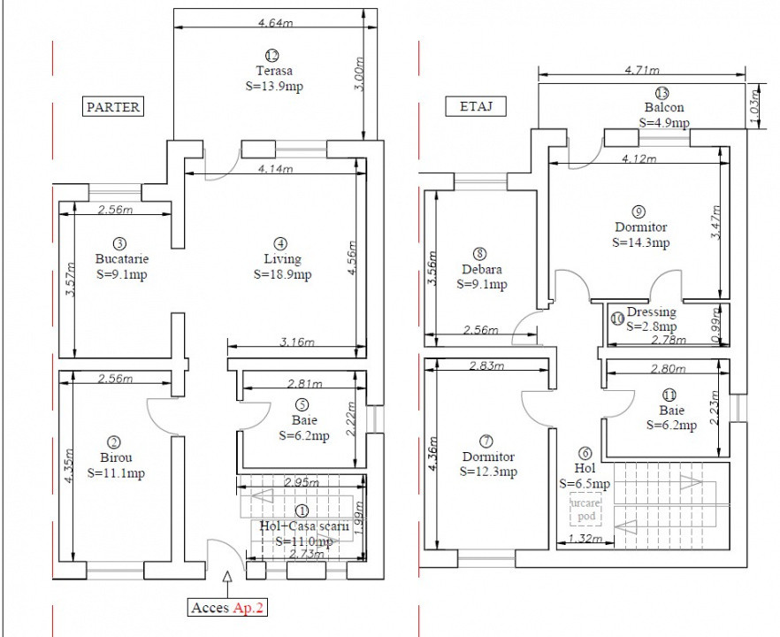
Proprietatea, situata in Dumbravita, cu suprafata de 107.5 mp utili si teren de 318 mp, configurata inteligent pentru confortul zilnic, ofera balanta perfecta intre spatiul generos si functionalitatea inteligenta, asigurand atat intimitate, cat si flexibilitate, multumita configuratiei cu birou separat la parter.
Localizare:
Locuinta situata pe strada Ferencz Lehart, aproape de Bd Ion Creanga, este pozitionata intr-o zona linistita, pe o strada asfaltata, oferind acces facil catre:
- Comunitate: Proximitate excelenta fata de Profi, restaurant, after school si gradinita.
- Facilitati: Conectivitate rapida catre Scoala, Primarie, Parc si zonele de interes major (Aeroport, Autostrada A1, centre de afaceri).
Detalii proprietate:
- Suprafata Utila 107.5 mp
- Suprafata Teren 318 mp
- Terasa 13.9 mp
- Balcon 4.9 mp
- Pod (Spatiu de depozitare generos)
Compartimentare Inteligenta - structura casei este gandita pentru a oferi functionalitate maxima familiei:
- Parter (Zona Flexibila): Hol si casa scarii, living spatios cu zona de dining, bucatarie separata, un Birou util (ideal pentru home office sau camera de oaspeti) si baie cu dus si bideu, cu acces direct pe terasa de 13.9 mp
- Etaj (Zona de Noapte): Hol, trei dormitoare, baie principala cu cada si bideu, loc special pentru masina de spalat, balcon si pod deasupra
Dotari Premium pentru confort durabil:
- Infrastructura: Utilitati complete (gaz, curent, apa, canalizare) racordate.
- Eficienta Termica: Izolatie exterioara de 10 cm si tamplarie de calitate
- Finisaje: Scari interioare placate cu piatra naturala ce da o nota eleganta
- Climatizare & Confort Termic: Centrala pe gaz Bosch si sistem de incalzire in pardoseala la ambele niveluri
- Siguranta: Sistem video exterior si poarta auto electrica
- Curte: Curte pavata in zona de acces si parcare, cu spatiu disponibil pentru amenajarea zonei verzi sau de relaxare
- Exterior Optimizat: Puncte de apa si curent trase in spatele curtii – pregatite pentru foisor sau zona de hobby
- Parcare: 2 locuri de parcare proprii
Pret: 230.000 EUR Comision 0%
Aceasta proprietate ofera spatiul si dotarile necesare pentru un stil de viata modern, sigur si echilibrat