























Spațiu comercial rar disponibil pe unul dintre cele mai circulate bulevarde din Timișoara, ideal pentru companii, liber-profesioniști sau antreprenori care caută o locație vizibilă și funcțională. Renovat integral, compartimentat eficient și gata de ocupat imediat – fără costuri suplimentare de amenajare, tot ce rămâne de făcut este să vă mutați și să începeți activitatea.
Locație:
Bulevardul Eroilor de la Tisa nr. 42, la intersecția cu Str. Ștefan cel Mare, la intrarea pe Calea Buziaşului – una dintre cele mai circulate axe rutiere ale Timișoarei. Spațiul beneficiază de vizibilitate directă din bulevard, flux constant de trafic pietonal și auto, și acces facil din orice zonă a orașului.
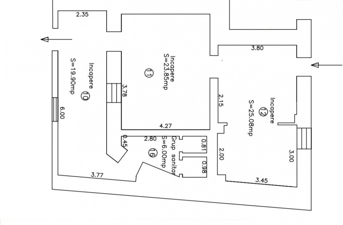
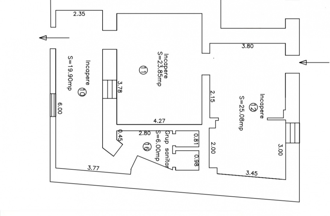
Suprafață și Compartimentare:
Spațiul are 75 mp utili, desfășurați pe parter, compartimentați în 3 încăperi distincte, cu posibilitate de utilizare flexibilă în funcție de specificul activității. Grupul sanitar propriu dispune de 2 WC-uri. Suplimentar, spațiul include o terasă proprie acoperită de 10 mp spre curtea interioară – utilizabilă ca zonă de fumat, pauze sau relaxare pentru angajați.
Accesul se face direct din stradă, iar ieșirea spre curte asigură o circulație fluentă. Curtea interioară permite acces auto pentru descărcarea mărfii și pune la dispoziție un loc de parcare.
Dotări Tehnice și Finisaje:
Spațiul a fost recent renovat integral și este predat în stare foarte bună, fără intervenții necesare din partea chiriașului:
- Pardoseală din parchet
- Iluminat LED pe toată suprafața
- Contor individual de energie electrică
- Încălzire prin centrală proprie pe gaz, cu calorifere
- Ușă de intrare și vitrină de câte 1 m lățime, cu expunere directă pe Bd. Eroilor de la Tisa
Destinație și Profil Chiriaș:
Spațiul este clasificat SAD și se adresează în special:
- Firmelor și start-up-urilor care au nevoie de sediu social cu adresă reprezentativă și vizibilitate
- Liber-profesioniștilor – avocați, notari, contabili, consultanți – pentru cabinet cu acces direct din stradă
- Activităților de retail sau servicii orientate spre clienți walk-in, care valorifică traficul pietonal din zonă
- Showroom-urilor sau atelierelor care au nevoie de acces auto și spațiu de depozitare
Preț și Condiții:
Chirie lunară 600 € + TVA. Preț per mp 8 € + TVA
Utilitățile (curent, gaz) se refactureaza lunar. Apa si canalizare incluse în chirie.
Comision chiriaș 0%
Disponibilitate Imediat